HRERA GurugramTemp Project Id : RERA-GRG-PROJ-403-2019
Submission Date : 30-11-2019 07:24:37 AM
Applicant Type : Company
Project Type: ONGOING




WONDER CITY BUILDCON PRIVATE LIMITED
GODREJ ONE, 5TH FLOOR, PIROJSHANAGAR, EASTERN EXPRESS HIGHWAY, VIKHROLI (EAST) MUMBAI MUMBAI CITY MH 400079
01244956150
1244956150 (Number Shared by Promoter in Public)
Notice_aria@godrejproperties.com
http://godrejproperties.com
XXXX346B
U70100MH2013PTC247696
 
 


 
 


 
 


 
 







GODREJ ARIA & 101 (VOL I)
SECTOR 79
GURGAON
GURUGRAM
01244956150
9871386779 (Number Shared by Promoter in Public)
Notice_aria@godrejproperties.com
GIRISH SINGH
01244956150
9871386779 (Number Shared by Promoter in Public)
Notice_aria@godrejproperties.com








As per sub-rule(2) of rule 3 of the Haryana Real Estate (Regulation and Development) Rules,2017, the fee for registration of the project as has been calculated as follows:
-----------------------------------------------------------------------------------------------------------------------
-----------------------------------------------------------------------------------------------------------------------
-----------------------------------------------------------------------------------------------------------------------
-----------------------------------------------------------------------------------------------------------------------
2. The aforesaid fees is hereby deposited vide following Drafts/ Banker’s Cheques:-

Sr No.Draft/Cheque No.Draft DateAmountPayee BankPayable To
19643618-07-20172758117HDFCHRERA Gurugram
245707219-07-2017133868HDFCHRERA Gurugram







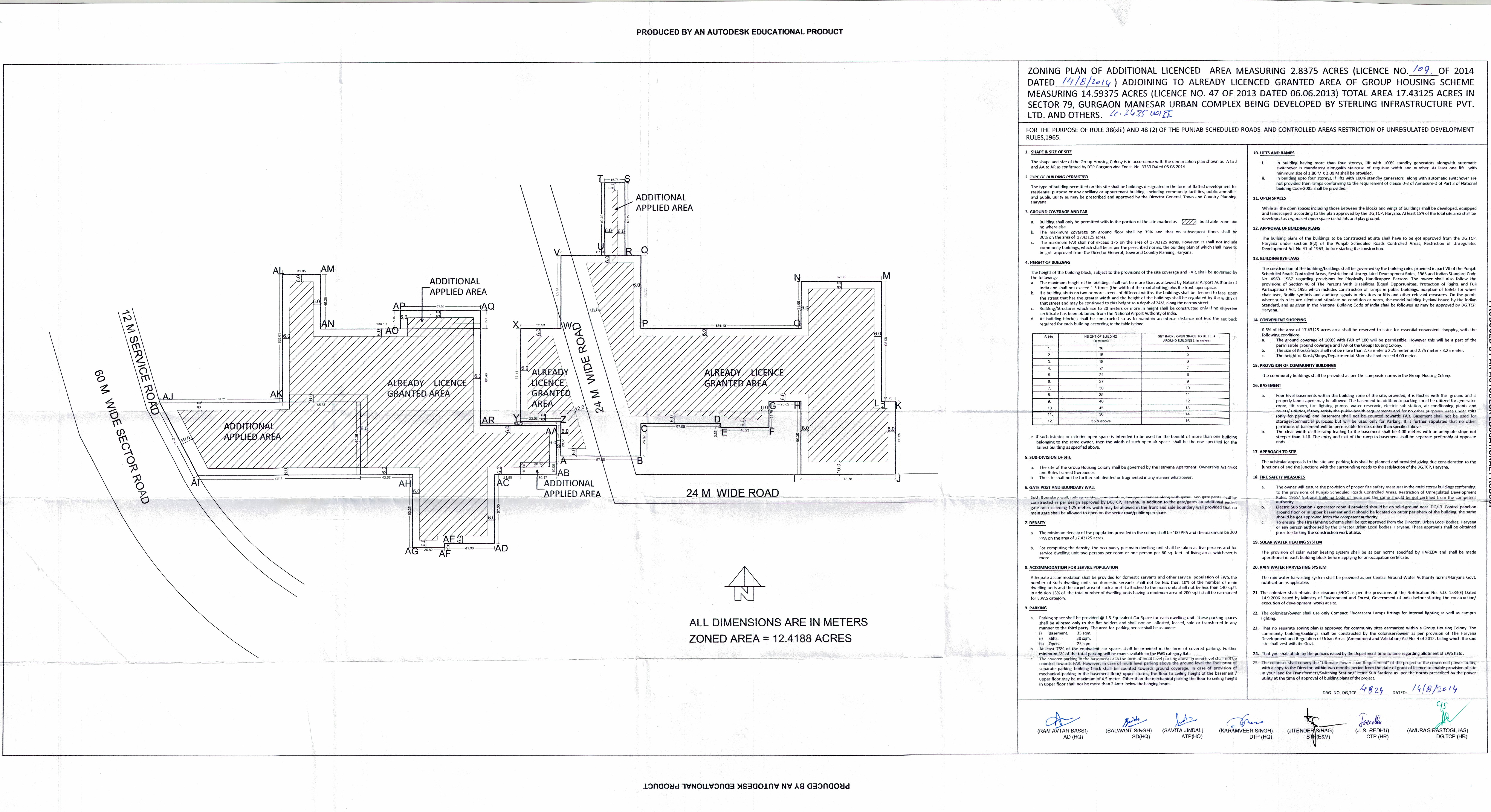
13.60625 (Acre)
123447.894
175
17.43125 (Acre)
47 of 2013 and 109 of 2014
No
Address     7TH FLOOR, PLOT NO. 15, SECTOR-44, GURGAON-122022
Address     7TH FLOOR, PLOT NO. 15, SECTOR-44, GURGAON-122022
Annexure-B- DEVELOPMENT AGREEMENT
AFTER
Yes
REVENUE SHARE BETWEEN LANDOWNERS AND DEVELOPERS IS 66.66 AND 33.34 SUBJECT TO TERMS OF THE DEVELOPMENT AGREEMENT
No
Yes
Yes







41273.84 Lakhs
4022.72 Lakhs
26325.80 Lakhs
6199.60 Lakhs
8744.41 Lakhs




Sr. No.Land area under usageArea of land (Square Meters)
1PLOTS TO BE SOLD 0
2LAND AREA TO BE USED FOR CONSTRUCTION OF APARTMENTS 7682.77
3CONSTRUCTION OF ROADS 9562.48
4PAVEMENTS 2288.64
5PARKS AND PLAYGROUNDS 13084.76
6GREEN BELTS 0
7VEHICLE PARKINGS 3840.6
8ELECTRICITY SUB-STATION 71.12
9CLUB HOUSE 1014.814
10SEWAGE AND SOLID WASTE TREATMENT FACILITY 0
11AREA TO BE LEFT FOR TRANSFERRING TO THE GOVERNMENT FOR COMMUNITY SERVICES 0
12ANY OTHER 14600.24
Total52145.424




FacilityExternal/ connecting service to be provided by (Name the agency)Whether Approval taken from the agency concerned. Yes/No (Annex details in folder C)
ROADSHUDA /GMDANo
WATER SUPPLYHUDA /GMDANo
ELECTRICITYDHBVNYes
SEWAGE DISPOSALHUDA /GMDANo
STORM WATER DRAINAGEHUDA /GMDANo




Sr. No.Name of the facilityEstimated cost (In Lakhs)(Within the project area only)Remarks: Yet to be prepared / Submitted to HUDA, Town & Country Planning Department/ as per project report etc. (Annex relevant documents showing costing details etc. in folder C)
1INTERNAL ROADS AND PAVEMENTS815.20YET TO BE PREPARED
2WATER SUPPLY SYSTEM240.73YET TO BE PREPARED
3STORM WATER DRAINAGE349.80YET TO BE PREPARED
4ELECTRICITY SUPPLY SYSTEM890.60YET TO BE PREPARED
5SEWAGE TREATMENT & GARBAGE DISPOSAL149.45YET TO BE PREPARED
6STREET LIGHTING153.96YET TO BE PREPARED
7SECURITY AND FIRE FIGHTING166.54YET TO BE PREPARED
8PLAYGROUNDS AND PARKS263.10YET TO BE PREPARED
9CLUB HOUSE/COMMUNITY CENTRE1348.74YET TO BE PREPARED
10SHOPPING AREA121.08YET TO BE PREPARED
11RENEWABLE ENERGY SYSTEM21.75YET TO BE PREPARED
12SCHOOL0YET TO BE PREPARED
13HOSPITAL/DISPENSARY0YET TO BE PREPARED
14ANY OTHER1678.66YET TO BE PREPARED


07-08-2015 (date)
07-08-2015 (date)


Sr. No.Plot/ apartment type Size of the plot/carpet area of the apartments Total number of plots/apartments in the project Total size of the plots/carpet area of the apartments Plots/apartments booked/ sold upto the date of application Yet to be sold/ booked No. of towers to be/ being constructed for booked apartments
1 APARTMENT/SHOPS/OTHER BUILDINGS Type 1BHK+STUDY 74 1 74 0 1 1
2 APARTMENT/SHOPS/OTHER BUILDINGS Type 2 BHK + STUDY - TYPE 10 102 2 204 0 2 1
3 APARTMENT/SHOPS/OTHER BUILDINGS Type 2 BHK + STUDY - TYPE 3 99 30 2970 15 15 2
4 APARTMENT/SHOPS/OTHER BUILDINGS Type 2 BHK + STUDY - TYPE 7 107 120 12840 74 46 2
5 APARTMENT/SHOPS/OTHER BUILDINGS Type 2 BHK + STUDY - TYPE 8 100 26 2600 6 20 2
6 APARTMENT/SHOPS/OTHER BUILDINGS Type 2 BHK + STUDY - TYPE 9 105 2 210 0 2 1
7 APARTMENT/SHOPS/OTHER BUILDINGS Type 2 BHK + STUDY-TYPE 4 98 26 2548 16 10 1
8 APARTMENT/SHOPS/OTHER BUILDINGS Type 2 BHK + STUDY-TYPE 5 104 16 1664 7 9 1
9 APARTMENT/SHOPS/OTHER BUILDINGS Type 2 BHK -TYPE 1 92 16 1472 8 8 1
10 APARTMENT/SHOPS/OTHER BUILDINGS Type 2 BHK -TYPE 2 84 2 168 2 0 1
11 APARTMENT/SHOPS/OTHER BUILDINGS Type 2BHK 89 144 12816 93 51 3
12 APARTMENT/SHOPS/OTHER BUILDINGS Type 2BHK+STUDY TYPE-1 99 35 3465 30 5 3
13 APARTMENT/SHOPS/OTHER BUILDINGS Type 2BHK+STUDY TYPE-2 100 32 3200 28 4 3
14 APARTMENT/SHOPS/OTHER BUILDINGS Type 3 BHK + UTILITY ROOM -TYPE 1 149 26 3874 15 11 2
15 APARTMENT/SHOPS/OTHER BUILDINGS Type 3 BHK + UTILITY ROOM -TYPE 2 158 60 9480 30 30 2
16 APARTMENT/SHOPS/OTHER BUILDINGS Type 3 BHK + UTILITY ROOM -TYPE 3 151 26 3926 10 16 2
17 APARTMENT/SHOPS/OTHER BUILDINGS Type 3BHK 131 90 11790 48 42 3
18 APARTMENT/SHOPS/OTHER BUILDINGS Type 3BHK+UTILITY ROOM 151 84 12684 51 33 3
Total7388598543330534






TypeNumber of apartments booked/ sold Write or Annex the stage of construction of the booked/ sold apartments in folder C
2 BHK + STUDY - TYPE 315STRUCTURE - DONE , BLOCK WORK - DONE , FLOORING - DONE , PAINTING - WIP
2 BHK + STUDY - TYPE 774STRUCTURE - DONE , BLOCK WORK - DONE , FLOORING - DONE , PAINTING - WIP
2 BHK + STUDY - TYPE 86STRUCTURE - DONE , BLOCK WORK - DONE , FLOORING - DONE , PAINTING - WIP
2 BHK + STUDY-TYPE 416STRUCTURE - DONE , BLOCK WORK - DONE , FLOORING - DONE , PAINTING - WIP
2 BHK + STUDY-TYPE 57STRUCTURE - DONE , BLOCK WORK - DONE , FLOORING - DONE , PAINTING - WIP
2 BHK -TYPE 18STRUCTURE - DONE , BLOCK WORK - DONE , FLOORING - DONE , PAINTING - WIP
2 BHK -TYPE 22STRUCTURE - DONE , BLOCK WORK - DONE , FLOORING - DONE , PAINTING - WIP
2BHK93STRUCTURE - DONE , BLOCK WORK - DONE , FLOORING - DONE , PAINTING - WIP
2BHK+STUDY TYPE-130STRUCTURE - DONE , BLOCK WORK - DONE , FLOORING - DONE , PAINTING - WIP
2BHK+STUDY TYPE-228STRUCTURE - DONE , BLOCK WORK - DONE , FLOORING - DONE , PAINTING - WIP
3 BHK + UTILITY ROOM -TYPE 115STRUCTURE - DONE , BLOCK WORK - DONE , FLOORING - DONE , PAINTING - WIP
3 BHK + UTILITY ROOM -TYPE 230STRUCTURE - DONE , BLOCK WORK - DONE , FLOORING - DONE , PAINTING - WIP
3 BHK + UTILITY ROOM -TYPE 310STRUCTURE - DONE , BLOCK WORK - DONE , FLOORING - DONE , PAINTING - WIP
3BHK48STRUCTURE - DONE , BLOCK WORK - DONE , FLOORING - DONE , PAINTING - WIP
3BHK+UTILITY ROOM51STRUCTURE - DONE , BLOCK WORK - DONE , FLOORING - DONE , PAINTING - WIP
SHOPS6STRUCTURE - DONE , BLOCK WORK - DONE , FLOORING - DONE , PAINTING - WIP


01-02-2016
28-02-2021
28-02-2021
01-02-2016
81
28-02-2021
YES
YES


PlotsBooked/soldStage of handing over the possession (Write or Annex details)
PLOT0NA
01-11-2019
0
01-11-2019
NA
NA


856
0
0
295
0





Expenditure incurred till the date of application (In Lakhs)

ParticularsExpenditure
Apartments20630.718
Shops99.81
Plots0

Expenditure to be made in each quarter (In Lakhs)

ParticularsYear-2019
Jan-MarApr-JuneJuly-SepOct-Dec
Apartments1444.18959
Shops00
Plots00

ParticularsYear-2020
Jan-MarApr-JuneJuly-SepOct-Dec
Apartments1757165341.9878
Shops0000
Plots0000

ParticularsYear-2021
Jan-MarApr-JuneJuly-SepOct-Dec
Apartments267153
Shops000
Plots000




Expenditure incurred till the date of application (In Lakhs)

ParticularsExpenditure
Roads & Pavements234.67
Water Supply System20.83
Sewerage treatment & garbage disposal65.59
Electricity Supply System768.47
Storm Water Drainage145.84
Parks and Playgrounds41.32
Clubhouse/community centres849.44
Shopping area87.80
Other91.77
Renewable Energy System21.75
Security and Fire Fighting60.63
Street Lighting77.50

Expenditure to be made in each quarter (In Lakhs)

ParticularsYear-2019
Jan-MarApr-JuneJuly-SepOct-Dec
Roads & Pavements0
Water Supply System7
Sewerage treatment & garbage disposal4
Electricity Supply System30
Storm Water Drainage0
Parks and Playgrounds0
Clubhouse/community centres25
Shopping area0
Other782.23
Street Lighting0
Security and Firefighting Systems0

ParticularsYear-2020
Jan-MarApr-JuneJuly-SepOct-Dec
Roads & Pavements20231069.100
Water Supply System10710600
Sewerage treatment & garbage disposal443060
Electricity Supply System513650
Storm Water Drainage6585540
Parks and Playgrounds175512030
Clubhouse/community centres150250740
Shopping area121560
Other257261257.66111
Street Lighting0000
Security and Firefighting Systems50000

ParticularsYear-2021
Jan-MarApr-JuneJuly-SepOct-Dec
Roads & Pavements0
Water Supply System0
Sewerage treatment & garbage disposal0
Electricity Supply System0
Storm Water Drainage0
Parks and Playgrounds0
Clubhouse/community centres0
Shopping area0
Other100












Particulars Remarks, if any
i. No. of Flats/Apartments constructed738NA
ii. No. of Flats/ Apartments booked433NA
iii. Total amount sale value of booked Flats, on the date of application/end of last quarter5474816776 LakhsNA
iv. Total amount received from the allottees (booked Flats), on the date of application/end of last quarter4587598932 LakhsNA
v. Balance amount to be received from the allottees (booked Flats, after completion), on the date of application/end of last quarter887217843 LakhsNA
vi. Balance amount due and recoverable from the allottees (booked Flats) as on the date of application /end of last quarter428107103 LakhsNA
vii. Amount invested in the project upto the date of application588.25 LakhsNA
Land cost (If any)140.94 LakhsNA
Apartments0 LakhsNA
Infrastructure329.10 LakhsNA
EDC/ Taxes Etc.118.21 LakhsNA
viii. Balance cost to be incurred for completion of the project and delivery of possession198.36 LakhsNA
(a) In respect of existing allottees0 LakhsNA
(b) In respect of rest of the project198.36 LakhsNA
ix. The amount of loan raised from the banks/ financial institutions/ private persons against the project
Annex detail of the securities furnished to the banks/ financial institutions against the aforesaid loans in folder C
0 LakhsNA
x. Total liabilities against the project up-to-date. (Annex details in folder C) 7537393088 LakhsNA



Particulars Estimated expenditure planned to be incurred as per service plan estimates or the project report. (In Lakhs)Actual expenditure incurred upto the date of application. (In Lakhs)
I. INTERNAL ROADS AND PAVEMENTS815.20234.67
II. WATER SUPPLY SYSTEM240.7320.83
III. STORM WATER DRAINAGE349.80145.84
IV. ELECTRICITY SUPPLY SYSTEM890.60768.47
V. SEWAGE TREATMENT & GARBAGE DISPOSAL149.4565.59
VI. CLUB HOUSE/COMMUNITY CENTRE1348.74849.44
VII. SCHOOL00
VIII. ANY OTHER00
IX. SOLID WASTE COLLECTION & MGMT SYSTEM149.4579.72
X. CLUBHOUSE00
XI. NEIGHBOURHOOD SHOPPING00
XII. GREEN AREAS,PARKS,PLAYGROUNDS ETC.263.1041.32
XIII. COVERED PARKING00
XIV. OPEN PARKING00
XV. GARAGES00
XVI. SECURITY SYSTEM166.5460.63
XVII. OTHER FACILITIES AS PER PROJECT REPORT00









Yes
Yes
HDFC BANK LTD FORT BRANCH MUMBAI
00600310035566
HDFC0000060
400240015
000060
Nitesh kataria
Yes











Yes
No
Yes
Yes
Yes
Yes
Yes
Yes
Yes
Yes


Yes
Yes
Yes
Yes
Yes
No
No
Yes
Statutory Approvals Statutory Approvals StatusDate
I. LICENCEALREADY BEEN OBTAINED06-06-2013
II. RENEWAL OF LICENCEALREADY BEEN OBTAINED12-06-2019
III. ADDITIONAL LICENCEALREADY BEEN OBTAINED14-08-2014
IV. RENEWAL OF ADDITIONAL LICENCEALREADY BEEN OBTAINED30-09-2019
V. BUILDING PLANALREADY BEEN OBTAINED20-08-2014
VI. ADDITIONAL/REVISED BUILDING PLANALREADY BEEN OBTAINED07-08-2015
VII. ENVIRONMENT CLEARANCEALREADY BEEN OBTAINED01-05-2017
VIII. FIRE SCHEME APPROVALALREADY BEEN OBTAINED12-12-2017
IX. SERVICE PLAN ESTIMATEALREADY BEEN OBTAINED08-03-2018








Yes


Yes


Agreement for Sale shall be executed between the Developer and alottee towards alotted unit













SPECIFICATION OF CONSTRUCTION
Specification of apartments and other buildings including the following:
1FLOORING DETAILS OF VARIOUS PARTS OF HOUSELAMINATED WOODEN FLOOR IN BEDROOMS/ANTI SKID CERAMIC TILES IN TOILETS/ANTI SKID TILES IN KITCHEN AND BALCONY
2WALL FINISHING DETAILSACRYLIC EMULSION/CERAMIC TILE 2'-0" ABOVE COUNTER FOR WALLS/TILE /STONE ARCHITRAVE WITH ARCYLIC EMULSION FOR TOWER LOBBIES
3KITCHEN DETAILSANTI SKID TILE FLOOR/CERAMIC TILE 2'-0" ABOVE COUNTER FOR WALLS/GRANITE TOP WITH STAINLESS STEEL SINK WITH DRAINBOARD
4BATHROOM FITTINGSALL PROVIDED OF STANDARD COMPANY MAKE
5WOOD WORK ETCNA
6DOORS AND WINDOS FRAMESEXTERNAL- ANODIZED/POWER COATED ALUMINUM/UPVC ,INTERNAL- HARDWOOD FRAME
7GLASS WORKON EXTERNAL BUILDING FAçADE AND ENTRANCE LOBBIES
8ELECTRIC FITTINGSMODULAR SWITCHES
9CONDUCTING AND WIRING DETAILSHIGH QUALITY FIRE RESISTANT LOW SMOKE COPPER WIRING
10CUPBOARD DETAILSNA
11WATER STORAGEUNDERGROUND AND OVERHEAD STORAGE TANK
12LIFT DETAILSTILE/STONE ARCHITRAVE WITH ACRYLIC EMULSION
13EXTERNAL GLAZINGSANNEALED GLASS
13.1WINDOWS/GLAZINGSANNEALED GLASS
14DOORSEXTERNAL -ANODIZED/POWDER COATED ALUMINUM/UPVC ,INTERNAL- TEAK FINISH FLUSH DOORS/MOULDED SHUTTER/LAMINATED FLUSH DOORS
14.1MAIN DOORSTEAK FINISH FLUSH DOORS/MOULDED SHUTTER
14.2INTERNAL DOORSLAMINATED FLUSH DOORS/MOULDED SHUTTER
15AIR CONDITIONINGFOR TOWER 9,10,11,12,13&14; -SPLIT AC'S IN ALL BEDROOMS FOR 1,2,3,4,8&15;-PROVISION OF SPLIT AC'S IN ALL ROOMS
16ELECTRICAL FITTINGSMODULAR SWITCHES
17CNG PIPE LINENA
18PROVISION OF WIFI AND BROADBAND FACILITYYES
19EXTERNAL FINISHING/COLOUR SCHEMEGOOD QUALITY EXTERNAL GRADE TEXTURE PAINT
20INTERNAL FINISHINGWALLS-ACRYLIC EMULSION/TILE CLADDING , FLOOR- LAMINATED WOODEN FLOOR/ANTISKID CERAMIC TILES
SPECIFICATION UNIT WISE
1 . LIVING/DINING/FOYER/FAMILY LOUNGE
1 . 1 FLOORVITRIFIED TILES
1 . 2 WALLSACRYLIC EMULSION
1 . 3 CEILINGOIL BOUND DISTEMPER
2 . MASTER BEDROOM/DRESSROOM
2 . 1 FLOORLAMINATED WOODEN FLOOR
2 . 2 WALLSACRYLIC EMULSION
2 . 3 CEILINGOIL BOUND DISTEMPER
2 . 4 MODULAR WARDROBESNA
3 . MASTER TOILET
3 . 1 FLOORANTI SKID CERAMIC TILE
3 . 2 WALLSTILE CLADDING TILL 7'-0" ON ALL SIDES
3 . 3 CEILINGGRID FALSE CEILING
3 . 4 COUNTERSGRANITE STONE
3 . 5 SANITARY WARE/CP FITTINGSALL PROVIDED OF STANDARD COMPANY MAKE
3 . 6 FITTING/FIXTURESALL PROVIDED OF STANDARD COMPANY MAKE
4 . BED ROOMS
4 . 1 FLOORLAMINATED WOODEN FLOOR
4 . 2 WALLSACRYLIC EMULSION
4 . 3 CEILINGOIL BOUND DISTEMPER
4 . 4 WARDROBESNA
5 . TOILET
5 . 1 FLOORANTI SKID CERAMIC TILE
5 . 2 WALLSTILE CLADDING TILL 7'-0" ON ALL SIDES
5 . 3 CEILINGGRID FALSE CEILING
5 . 4 COUNTERSGRANITE STONE
5 . 5 SANITARY WARE/CP FITTINGSALL PROVIDED OF STANDARD COMPANY MAKE
5 . 6 FIXTURESALL PROVIDED OF STANDARD COMPANY MAKE
6 . KITCHEN
6 . 1 FLOORANTI SKID TILES
6 . 2 WALLSCERAMIC TILES 2'-0" ABOVE COUNTER
6 . 3 CEILINGOIL BOUND DISTEMPER
6 . 4 COUNTERSMARBLE/GRANITE TOP
6 . 5 FIXTURESSTAINLESS STEEL SINK WITH DRAIN BOARD
6 . 6 KITCHEN APPLIANCESNA
7 . UTILITY ROOMS/UTILITY BALCONY/TOILET
7 . 1 FLOORANTI SKID/CERAMIC TILES
7 . 2 WALLS & CEILINGACRYLIC EMULSION IN UTILITY
7 . 3 TOILETROOM/EXTERNAL GRADE PAINT IN
7 . 4 BALCONYBALCONY/OIL BOUND DISTEMPER IN CEILING
8 . SIT-OUTS
8 . 1 FLOORNA
8 . 2 WALLS & CEILINGNA
8 . 3 RAILINGSNA
8 . 4 FIXTURESNA












Sr. No.Document DescriptionDate of Document UploadView Document
1DOCUMENTS RELATING TO THE ENTRY OF LICENSE AND COLLABORATION AGREEMENT IN THE REVENUE RECORD28-11-2019 View Document
2WONDER CITY BUILDCON PRIVATE LIMITED BALANCE SHEET 201928-11-2019 View Document
3DEVELOPMENT AGREEMENT28-11-2019 View Document
4DEMARCATION PLAN28-11-2019 View Document
5AGREEMENT FOR SALE28-11-2019 View Document
6WONDER CITY BUILDCON PRIVATE LIMITED BALANCE SHEET 201828-11-2019 View Document
7IN CASE OF GROUP HOUSING/ COMMERCIAL SITES, A COPY OF THE APPROVED SITE PLAN28-11-2019 View Document
8IN CASE OF PLOTTED COLONY, THE LATEST LAYOUT PLAN28-11-2019 View Document
9WONDER CITY BUILDCON PRIVATE LIMITED BALANCE SHEET 201728-11-2019 View Document
10NON DEFAULT CERTIFICATE FROM A CHARTERED ACCOUNTANT28-11-2019 View Document
11DECLARATION SUPPORTED BY AFFIDAVIT DULY SIGNED BY THE PROMOTER TO BE ENCLOSED.28-11-2019 View Document
12ALLOTMENT LETTER28-11-2019 View Document
13ZONING PLAN28-11-2019 View Document
14COPY OF LICENSE ALONG WITH SCHEDULE OF LAND28-11-2019 View Document
15GENERAL POWER OF ATTORNEY28-11-2019 View Document
16SERVICE PLANS SHOWING THE SERVICES ON THE LAYOUT PLAN28-11-2019 View Document
17STATEMENT OF LIABILITIES AGAINST THE PROJECT28-11-2019 View Document
18A COMPLETE SET OF THE LAST APPROVED BUILDING PLANS28-11-2019 View Document
19CASH FLOW STATEMENT OF THE PROPOSED PROJECT30-11-2019 View Document
20CERTIFICATE FROM A CHARTERED ACCOUNTANT CERTIFYING THAT THE INFORMSTION PROVIDED BY THE APPLICANT IN FORM REP-1-C-X IS CORRECT AS PER THE BOOKS OF ACCOUNTS/ BALANCE SHEET OF THE APPLICANT30-11-2019 View Document












Sr. No.Document DescriptionDate of Document UploadView Document
1 Occupation Certificate 02-08-2024 View Document
2 Occupation Certificate 13-08-2024 View Document